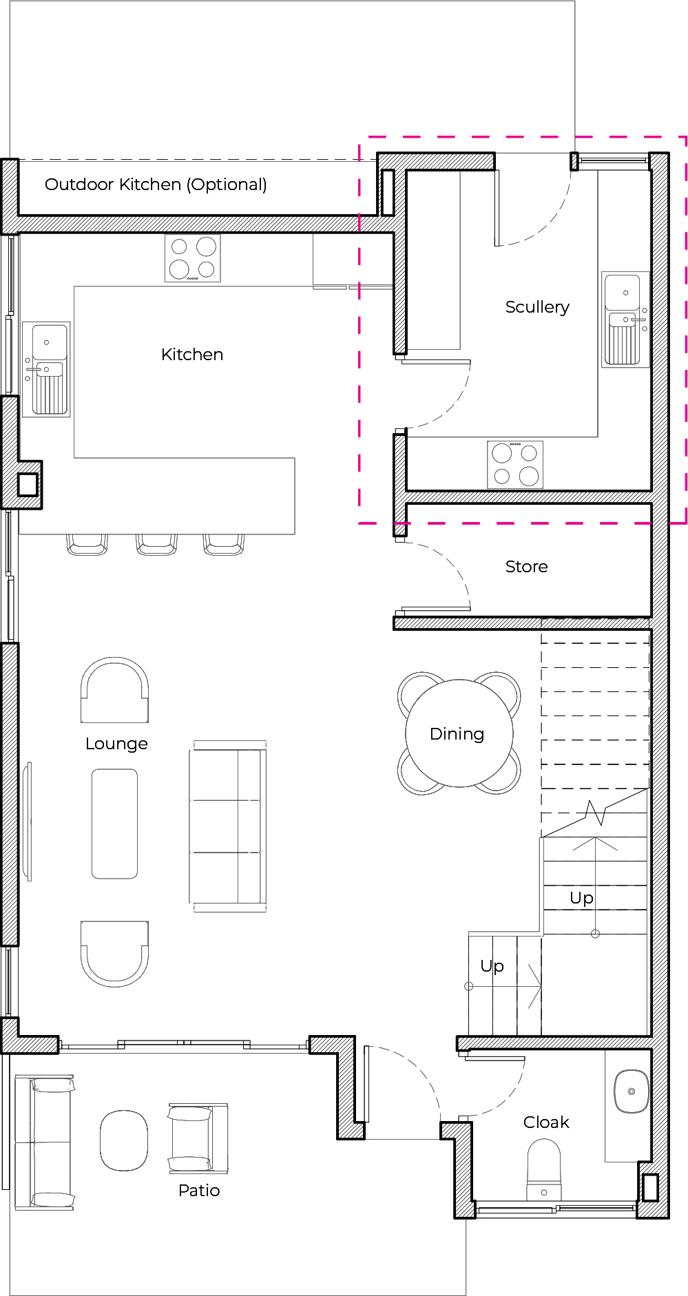
The three bedroom townhouse has been designed with an emphasis on combined indoor / outdoor entertaining, with open plan kitchen, spacious living / dining areas and private gardens.
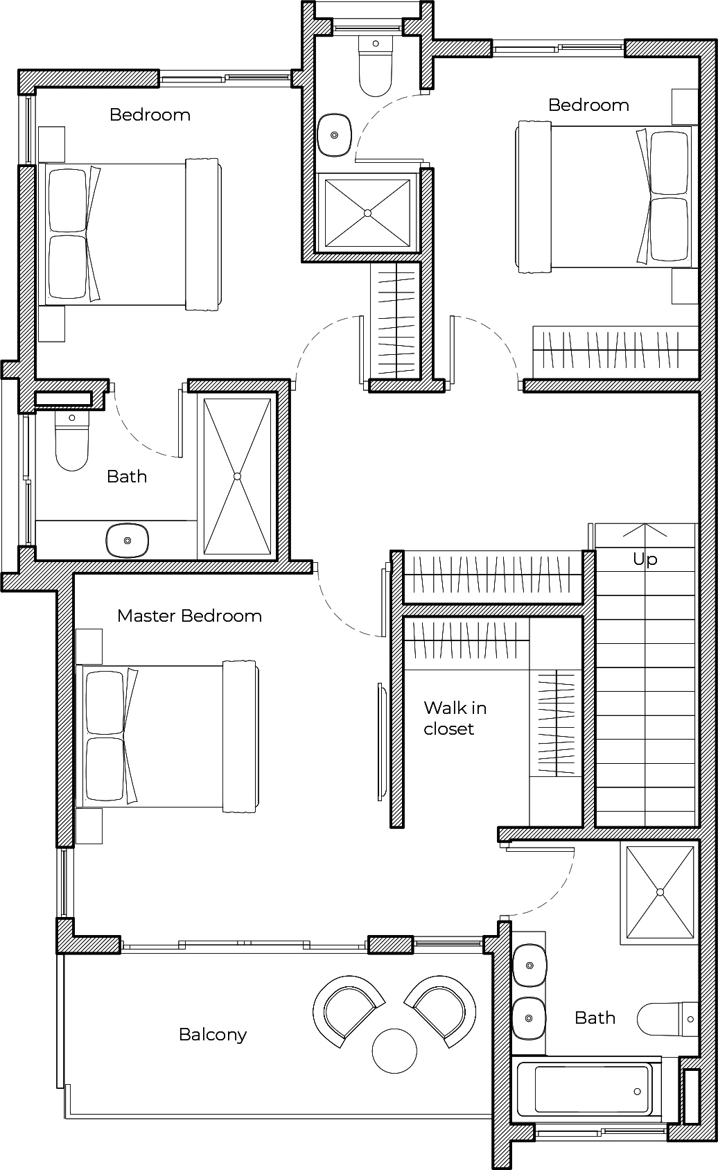
The open plan design creates a sumptuous feel. The kitchen features beautiful bench tops, breakfast bar, built in appliances and cabinets. The generous bedrooms include built-in or walk-in robes, while the bathrooms enjoy custom vanities.
As part of the Akaya living environment, we’ve designed an expansive private garden from 150sqm (excluding patio areas) offering ample room for the whole family to enjoy. The garden is circa 50% larger than the market average.
